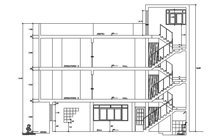
The left side section view of the 12x23m three story residential building cad drawing
Description
The left side section view of the 12x23m three story residential building cad drawing is given in this file. This is G+ 2 house building. On this ground floor house plan, a car parking, living room, kitchen, dining area, master bedroom with the attached toilet, terrace, lavanderia, and common bathroom is available. On this first floor house plan, guest bedroom, living room, kitchen, dining area, master bedroom with the attached toilet, terrace, lavanderia, and common bathroom is available. On this second floor house plan, guest bedroom, living room, kitchen, dining area, master bedroom with the attached toilet, terrace, lavanderia, and common bathroom is available. For more details download the AutoCAD drawing model from our cadbull. Thank you for downloading the AutoCAD files from our cadbull website.
Uploaded by:

