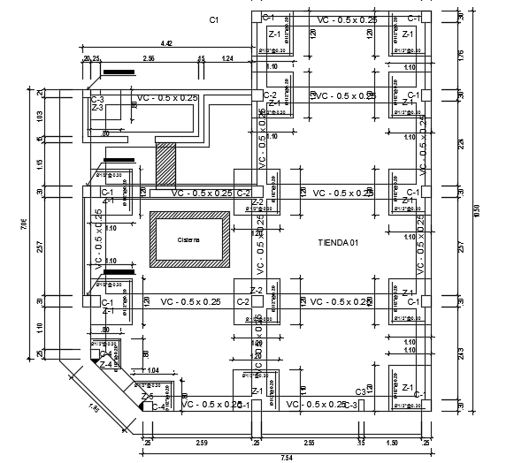
9x10m architecture three story hotel cum house plan column and foundation layout
Description
9x10m architecture three story hotel cum house plan column and foundation layout cad drawing is given in this file. The distance between each column and foundations are mentioned. The dimension of the column and foundations are given. For more details download the AutoCAD model from our cadbull website. Thank you for downloading the AutoCAD files from our website.
Uploaded by:

