LOGIN
HOME
CATEGORIES
UPLOAD FILE
PRICING
HOUSE PLAN
ABOUT US
CONTACT US
Villa Project Detail
Home
Categories
Architecture
Bungalow House Design
Villa Project Detail
Uploaded by:
K.H.J
Jani
View Profile
View Profile
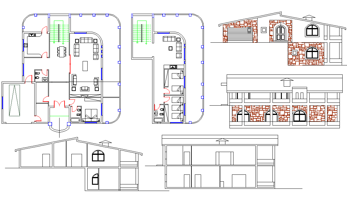
Description
Villa Project Detail dwg file. The architecture layout plan with furniture detail, section plan and elevation design of Villa Project.
File Type:
DWG
File Size:
254 KB
Category::
Architecture
Sub Category::
Bungalow House Design
type:
Gold
Uploaded by:
K.H.J
Jani
View Profile
Download
Add to libary
find Latest
Related
Files