16x25m architecture two story residential house plan bedroom layout cad drawing
Description
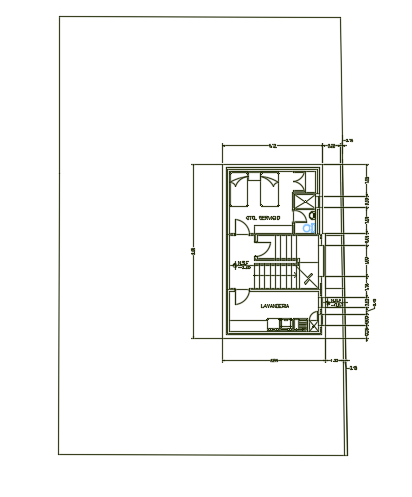
16x25m architecture two story residential house plan bedroom layout cad drawing is given in this file. The length and breadth of the house plan are 5.2m and 9.95m respectively. For more details download the AutoCAD drawing file from our cadbull website. Thank you for downloading the AutoCAD files from our website.
Uploaded by:
