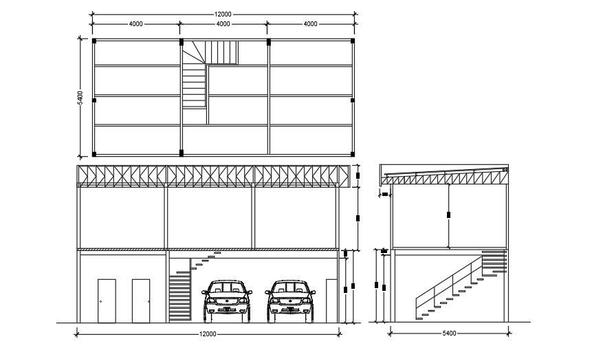
Plan and elevation of two story residential building.
Description
This architecture drawing is plan, front elevation and side elevation of residential building. This is a two story house building. In this drawing file in plan the pillars and columns with stairs is shown, in front elevation the car is carked that gives us parking space and stairs leading us to connected floor, in side elevation stairs are shown with railing. For more information and details download the drawing file.
File Type:
DWG
File Size:
141 KB
Category::
Interior Design
Sub Category::
House Interiors Projects
type:
Gold

Uploaded by:
Eiz
Luna

