8x14m architecture single story house plan AutoCAD 2d drawing is given in this file
Description
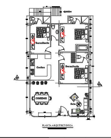
8x14m architecture single story house plan AutoCAD 2d drawing is given in this file. This is a 3bhk house plan. On this floor plan, the living room, kitchen, dining room, master bedroom with the attached bathroom, kids’s bedroom with the attached bathroom, guest room with the attached bathroom, and common bathroom is available. For more details download the AutoCAD drawing file from our cadbull website. Thank you for downloading the AutoCAD files from our website.
Uploaded by:

