6x15m architecture three story house plan cad drawing is given in this file
Description
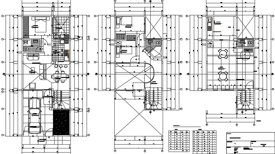
6x15m architecture three story house plan cad drawing is given in this file. This is a 3bhk house plan. On this ground floor, a car parking, living room, kitchen, dining room, patio service, master bedroom, and garden is available. On this first floor, passage, master bedroom, kid’s bedroom, and common bathroom is available. On this second floor, lavanderia, table set, and common bathroom is available. For more details download the AutoCAD drawing file from our cadbull website. Thank you for downloading the AutoCAD files from our website.
Uploaded by:

