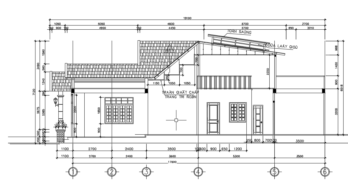
The front cut section view of the 21x6m architecture home building AutoCAD drawing
Description
The front cut section view of the 21x6m architecture home building AutoCAD drawing is given in this file. This is two story residential building. The living room, kitchen, dining room, parking, master bedroom, kid’s bedroom, common bathroom, and garden is available on this ground floor. The living room, kitchen, dining room, master bedroom, kid’s bedroom, common bathroom, and garden is available on this first floor. For more details download the AutoCAD drawing file from our cadbull website. Thank you for downloading the AutoCAD files from our website.
Uploaded by:

