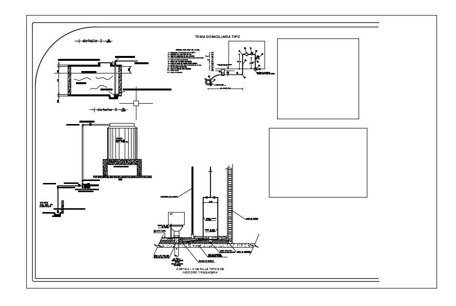
14x18m house building cistern and pipeline cad drawing is given in this model
Description
14x18m house building cistern and pipeline cad drawing is given in this model. For more details download the AutoCAD drawing file from our cadbull website. Thank you for downloading the AutoCAD files from our website.
Uploaded by:

