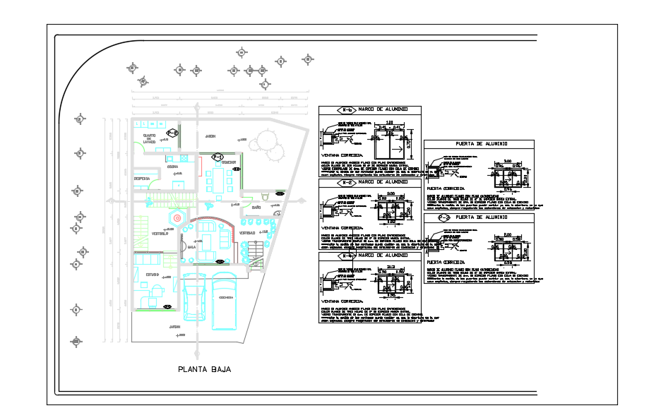
A window detail drawing of the 14x18m architecture ground floor house plan 2d Autocad drawing
Description
A window detail drawing of the 14x18m architecture ground floor house plan 2d Autocad drawing is given in this file. This is two story residential building. On this ground floor, a car parking, living room, study room, vestibulo, kitchen, dining room, storeroom, lavanderia, garden, and common bathroom is available. For more details download the AutoCAD drawing file from our cadbull website. Thank you for downloading the AutoCAD files from our website.
File Type:
DWG
File Size:
2 MB
Category::
Dwg Cad Blocks
Sub Category::
Windows And Doors Dwg Blocks
type:
Gold
Uploaded by:

