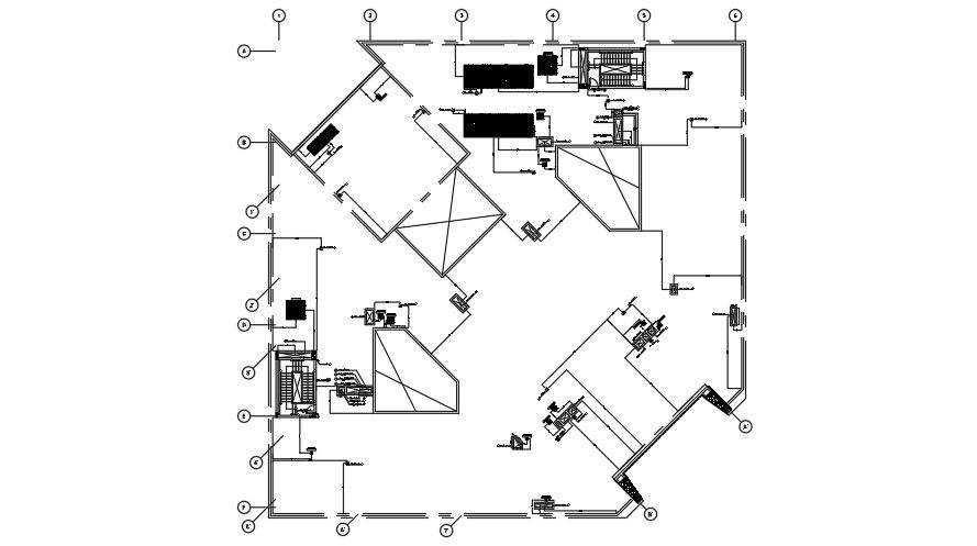
Plumbing layout of roof.
Description
This Architectural Drawing is plan of roof of building. This is a 5 story building. Roof plumbing gets water off your roof – in essence, that pretty much sums up the role roof plumbing plays in your home. That’s because water is one of the most damaging things mother nature can throw at your home. Pooled-up or stagnant water is a major threat not only to your metal roof but to your entire home. Water build-up can cause damage, decay, sagging… the list goes on. For more details and information download the drawing file.
File Type:
DWG
File Size:
1.9 MB
Category::
Dwg Cad Blocks
Sub Category::
Autocad Plumbing Fixture Blocks
type:
Gold

Uploaded by:
Eiz
Luna
