Working drawing of Wall.
Description
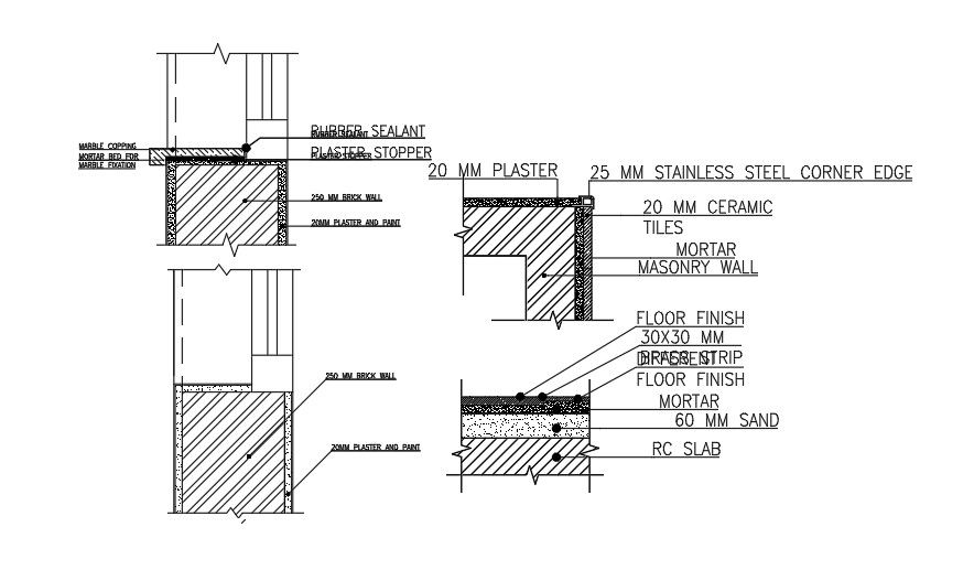
This Architectural Drawing is a working drawing of wall with detailing. A wall is a structure and a surface that defines an area; carries a load; provides security, shelter, or soundproofing; or, is decorative. There are many kinds of walls, including: Walls in buildings that form a fundamental part of the superstructure or separate interior rooms, sometimes for fire safety. For more details and information download the drawing file.

Uploaded by:
Eiz
Luna

