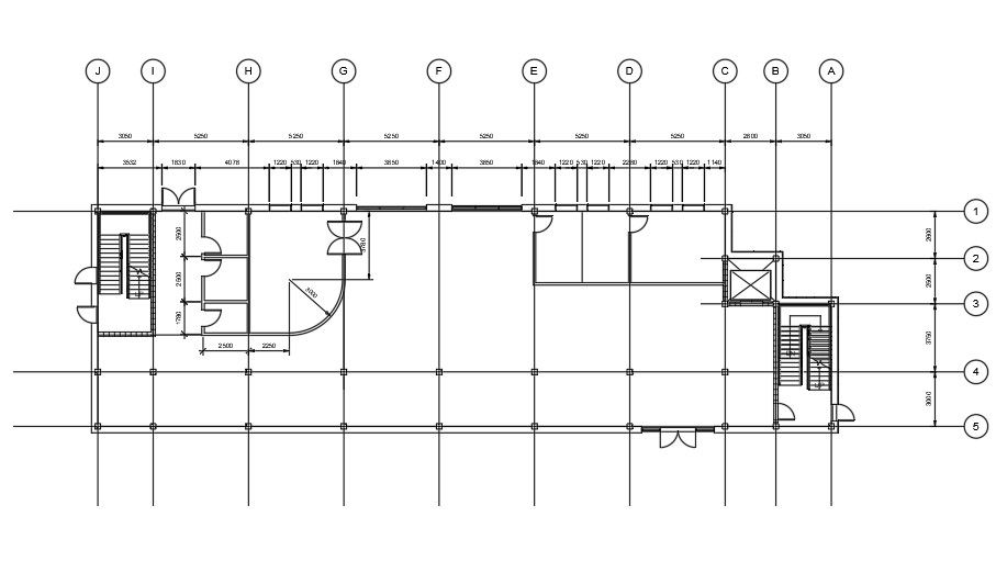
Column Plotting plan.
Description
This Architectural drawing is plan of column plotting. The plan which contains column size & position is called a column layout plan. The column layout plan is very important for a Structure. Because without column layout it’s impossible to locate the actual location of the structure. Basically, the column layout plan is drawn by hand or Auto CAD. Auto Cad software is the most popular software for drawing. For example, columns are usually assigned a grid number and referenced to the column center-line for dimensioning purposes . The grid consists of numbers along one axis and letters of the alphabet along the other, so that one can easily pinpoint a specific column. For more knowledge and information download the drawing file.

Uploaded by:
Eiz
Luna
