2 story house building foundation plan.
Description
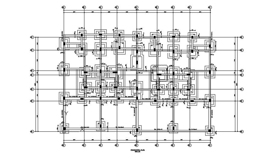
This Architectural Drawing is foundation plan of 2story house building. This is 3 bhk 2 story house building. In this drawing, on ground floor there is kitchen, living room, one common bathroom, garden and parking space. In first floor there are 3 bedrooms, one master bedroom with attached bathroom, closet and balcony, and other two bedrooms with attach balcony and have a common bathroom. In this drawing the dimension are also mention with some furniture layout to see usage of necessary space and some landscaping can also done in this plan. The foundation plan is a plan view drawing, in section, showing the location and size of footings, piers, columns, foundation walls, and supporting beams. A foundation plan ordinarily includes the following: • Footings for foundation walls, piers, and columns (hidden lines). The foundation plan is drawn from information presented on the floor plan, plot plan, and elevation plan drawings. Before drawing the foundation plan, examine the floor plan to determine the type of exterior walls specified. For more details download the drawing file.
File Type:
DWG
File Size:
2.7 MB
Category::
Structure
Sub Category::
Section Plan CAD Blocks & DWG Drawing Models
type:
Gold

Uploaded by:
Eiz
Luna
