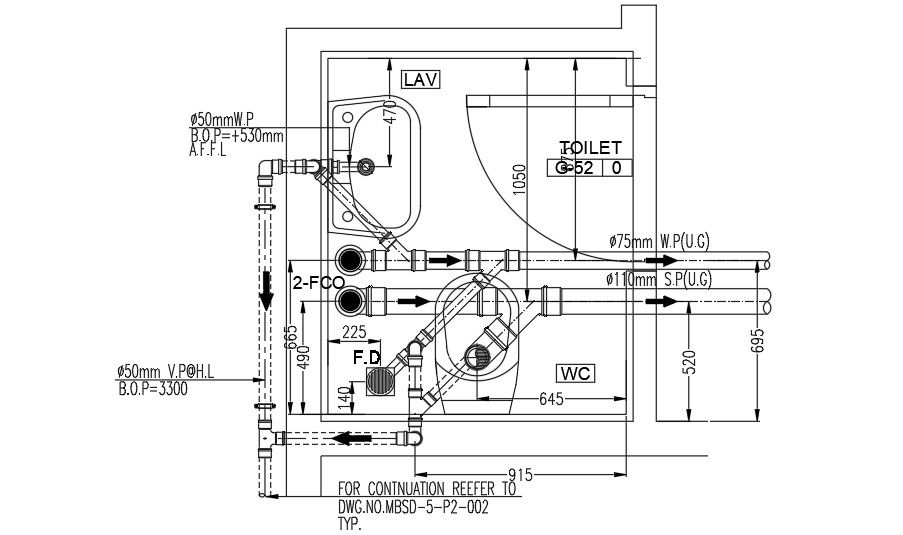
Sink and WC plumbing layout.
Description
This Architectural Drawing is plan of Sink and WC plumbing layout. Each fixture and house are different, so hire a pipe fitter or plumber to run the lines for you if possible. While there are many individual components in your plumbing system, it's useful to break it down into three primary systems: your water supply, water heating, and drainage. Run the lower sink drainpipe, adding elbows or collar connections as needed to reach the 3-inch drainpipe that runs from the toilet. The configuration depends upon your bathroom layout and the direction of the floor joists, but connect the sink drain to the toilet drain within 6 feet of the toilet, if possible. For more information and detail download the drawing file.
File Type:
DWG
File Size:
1.8 MB
Category::
Dwg Cad Blocks
Sub Category::
Autocad Plumbing Fixture Blocks
type:
Gold

Uploaded by:
Eiz
Luna

