Fire Fighting system in building.
Description
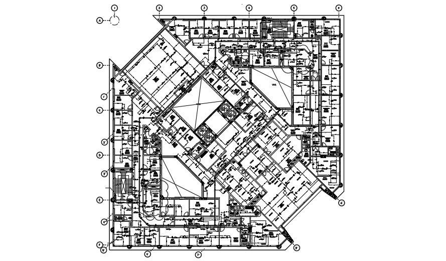
This Architectural Drawing is Fire Fighting system in building. A fire fighting system is an activity of prevention during a fire spread in building, home or warehouse with the use of proper fire safety equipment like extinguisher, hose reels, fire monitors, nozzles and hose pipes. Fire-protection systems fall into two main categories — passive fire protection and active fire protection. Passive fire protection involves the use of building components to control or limit a fire. Walls, floors, and ceilings can be designed and constructed to resist the passage of fire and smoke. Every year large numbers of people die due to Fire. Fire safety can easily be ensured by having Fire Fighting Equipment and proper Fire Protection. The Importance of Fire fighting Equipment is an indispensable one to ensure maximum Protection against Fire. Firefighting Equipment is the main firefighter equipment used to extinguish fires, including fire fighting hose, portable fire pumps, fire hose reels, fire monitors and fire fighting nozzles. For more details and information download the drawing file.
File Type:
DWG
File Size:
2.5 MB
Category::
Dwg Cad Blocks
Sub Category::
Autocad Plumbing Fixture Blocks
type:
Gold

Uploaded by:
Eiz
Luna

