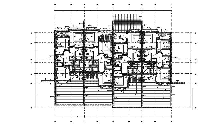
Beam and Column plan of residential building.
Description
This Architectural Drawing is Beam and Column plan of residential building. Beam-column design is the confluence of three separate design “storms”: compression member design, flexural member design, and the interaction of axial compression and flexural loads. Beam layout is very important for any structure. various things are considered to do a perfect beam layout for a structure. The structural layout plan, often known as the structural scheme of a structure, is critical to its structural performance. A beam is a structural element that primarily resists loads applied laterally to the beam's axis (an element designed to carry primarily axial load would be a strut or column). Its mode of deflection is primarily by bending. The loads applied to the beam result in reaction forces at the beam's support points. For more details and information download the drawing file.
File Type:
DWG
File Size:
8 MB
Category::
Structure
Sub Category::
Section Plan CAD Blocks & DWG Drawing Models
type:
Gold

Uploaded by:
Eiz
Luna
