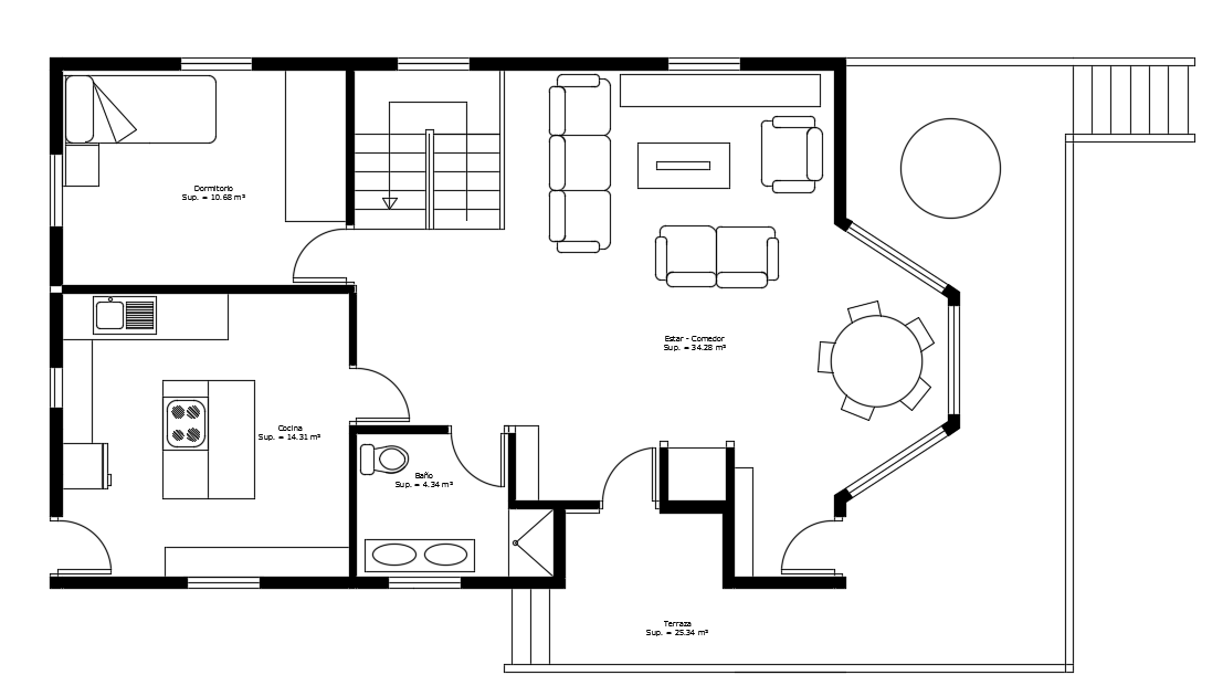
14x8m house plan ground floor room dimension detail drawing is given
Description
14x8m house plan ground floor room dimension detail drawing is given. The total area of the kitchen is 9.61m2. The total area of the master bedroom is 10.51m2. The living room cum dining area dimension is 10.51m2. The common bathroom dimension is 4.21m2. The total construction area is 75.01m2.
Uploaded by:

