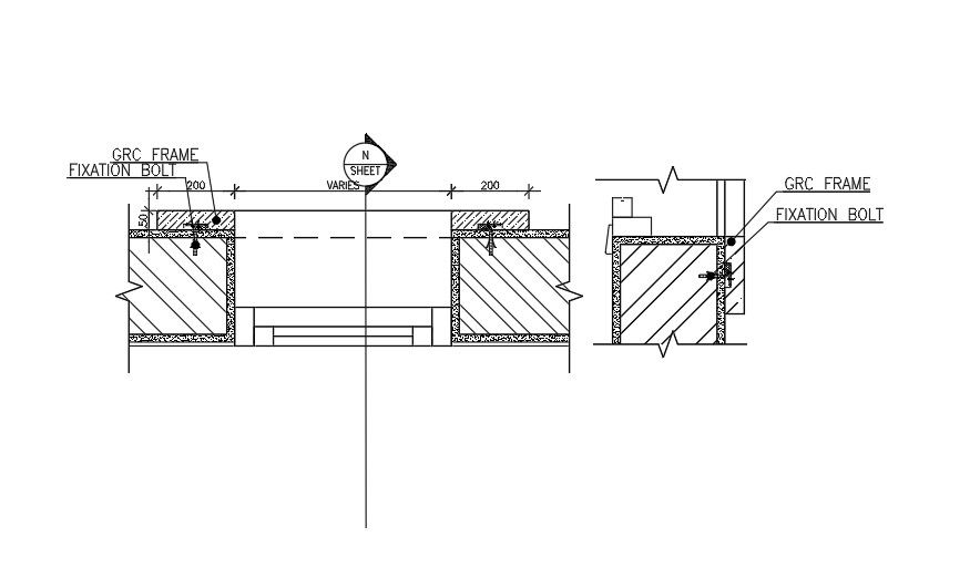
Section of Window GRS Frame Detail.
Description
This Architectural Drawing is Section of Window GRC Frame Detail. Glass fiber reinforced concrete (GFRC) is a type of fiber-reinforced concrete. The product is also known as glassfibre reinforced concrete or GRC in British English. Glass fiber concretes are mainly used in exterior building façade panels and as architectural precast concrete. The structural advantages of GRC arise from a reduced weight and a higher impact and tensile strength as compared with concrete. To obtain a corrosion free material with high durability, the structural elements studied were designed with reinforcement of carbon tendons and stainless steel bars. GRC typically has a 15mm skin, hollow ribs created around the perimeter of the panel provides structural integrity to the panels, this provides superior compressive strength over precast concrete generally 50 – 80 mpa. For more details and information download the drawing file.

Uploaded by:
Eiz
Luna

