Soil pipeline path in bathroom.
Description
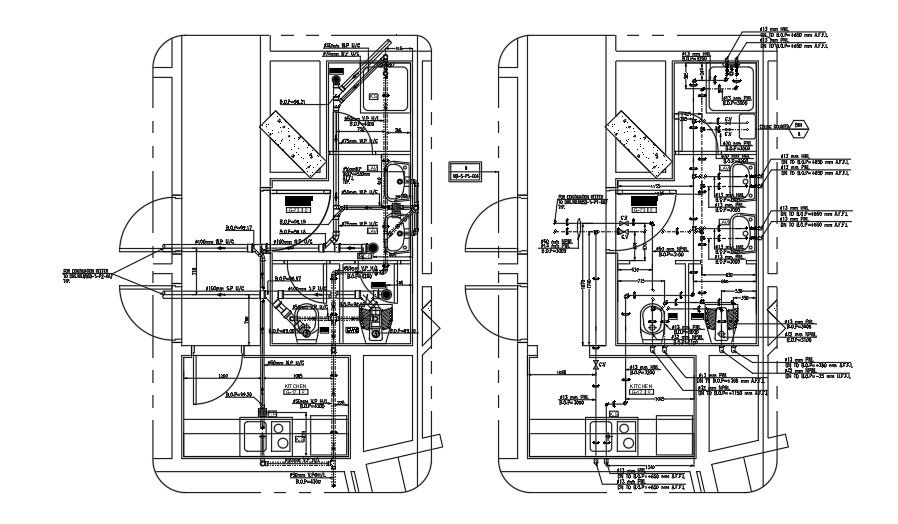
This Architectural Drawing is Soil pipeline path in bathroom. A soil pipe is a pipe that conveys sewage or wastewater reliably, either from the toilet or sink to a soil drain or sewer. It is always placed above the highest waste water inlet into the pipe. A vent is usually located above the roof, so odours and gases can escape harmlessly without causing a nuisance to the property occupiers or neighbours. They are relatively easy to spot as they run vertically from the underground drainage system to the top of a property, where they reach the roof gutter. Decorations. If you don't want to go to the house of boxing in your pipes or building fake walls, then a much simpler (and cheaper) way of hiding the pipework in your bathroom is to use decorations. Decorations can be as simple as winding some fake flowers or ribbons around the pipes or using rope to obscure them. As long as the pipe have at least 15% downhill slop from Toilet to main waste pipe it would be ok. Any distance up to 3m do not require extra joining points as standard 4inch waste pipe is 3m long. That is how manufacture made it. You can buy shorter too but 3m long is no problem to get. For more details and information download the drawing file.
File Type:
DWG
File Size:
4.1 MB
Category::
Dwg Cad Blocks
Sub Category::
Autocad Plumbing Fixture Blocks
type:
Gold

Uploaded by:
Eiz
Luna

