Sanitary pipelines fitting layout.
Description
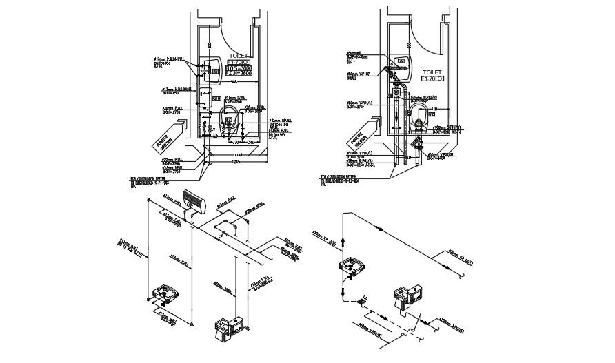
This Architectural Drawing is of Sanitary pipelines fitting layout. Sanitary fittings are designed and constructed for use in food, beverage, medical, pharmaceutical, and biological applications where cleanliness and sterility are required. These types of fittings are constructed of materials that ensure a sterile environment and maintain sterility during use. One of the most distinguishing features of all sanitary tube fittings is the surface finish, most commonly referred to as Roughness Average (Ra). At a microscopic level, stainless steel has peaks and valleys that can harbor bacteria throughout the production cycle. Wyes. Wye pipe fittings are also called lateral connections. the name wye came because it resembles the letter “Y”. Such type of pipe fittings are used in drainage systems and have a branch line at 45 degrees to keep the flow of water smooth. For moredetails and information download the drawing file.
File Type:
DWG
File Size:
2 MB
Category::
Dwg Cad Blocks
Sub Category::
Autocad Plumbing Fixture Blocks
type:
Gold

Uploaded by:
Eiz
Luna

