Toilet plan with sanitary ware details.
Description
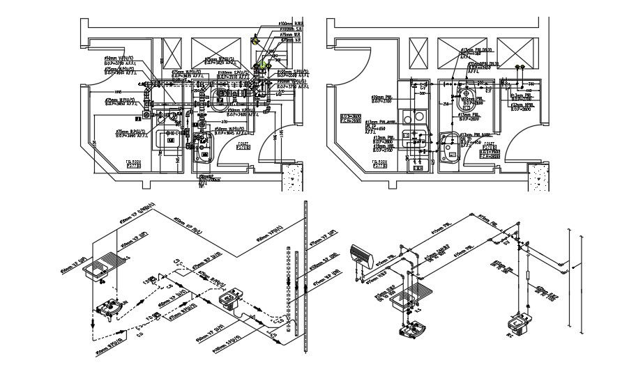
This Architectural drawing is of Toilet plan with sanitary ware details. Plumbing is the practice, materials and fixtures used in the installation or maintenance of all pipes in connection with both water supply and sanitary systems within or adjacent to any building. The entire system of piping, fittings and the appurtenances are known as plumbing system. Sanitary piping systems remove effluent discharged from plumbing fixtures and other equipment to an approved point of disposal. Stainless steel: Stainless steel is the most commonly used material in sanitary tubing, with Stainless Steel 304 being the most common grade. This material is extremely durable, resistant to corrosion and damage, and is easy to clean. For more details and information download the Drawing file.
File Type:
DWG
File Size:
2 MB
Category::
Dwg Cad Blocks
Sub Category::
Autocad Plumbing Fixture Blocks
type:
Gold

Uploaded by:
Eiz
Luna

