21x20m house building front cut section view
Description
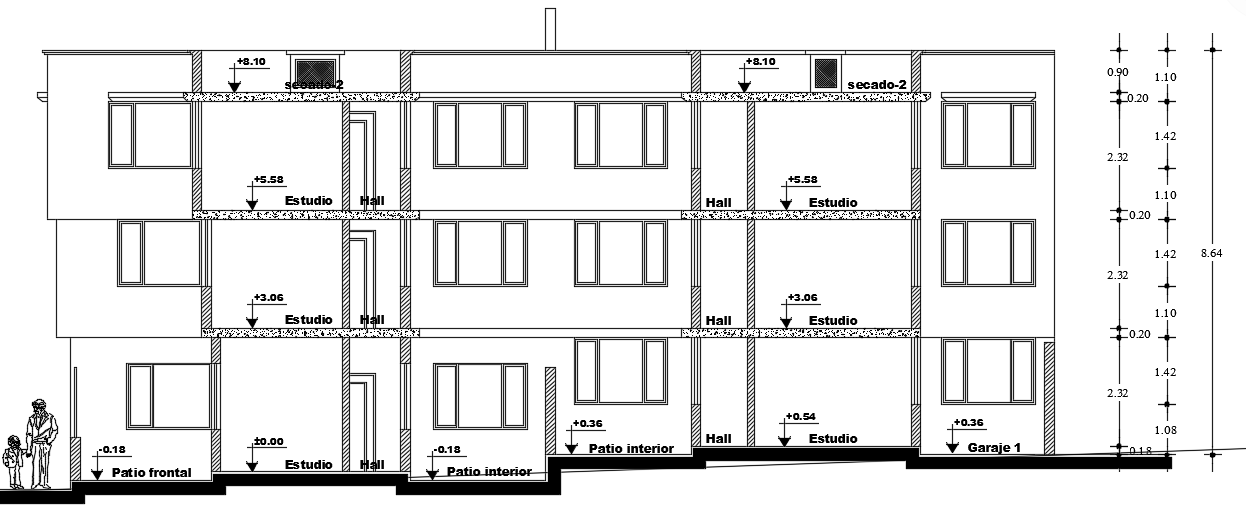
21x20m house building front cut section view cad model is given in this file. This is a three story residential building. The total height of the building up to water level is 8.64m. Garage, patio interior, studio, and hall views are available. The height of each floor is 2.32.
Uploaded by:

