21x20m 3 story house plan ground floor sanitary layout
Description
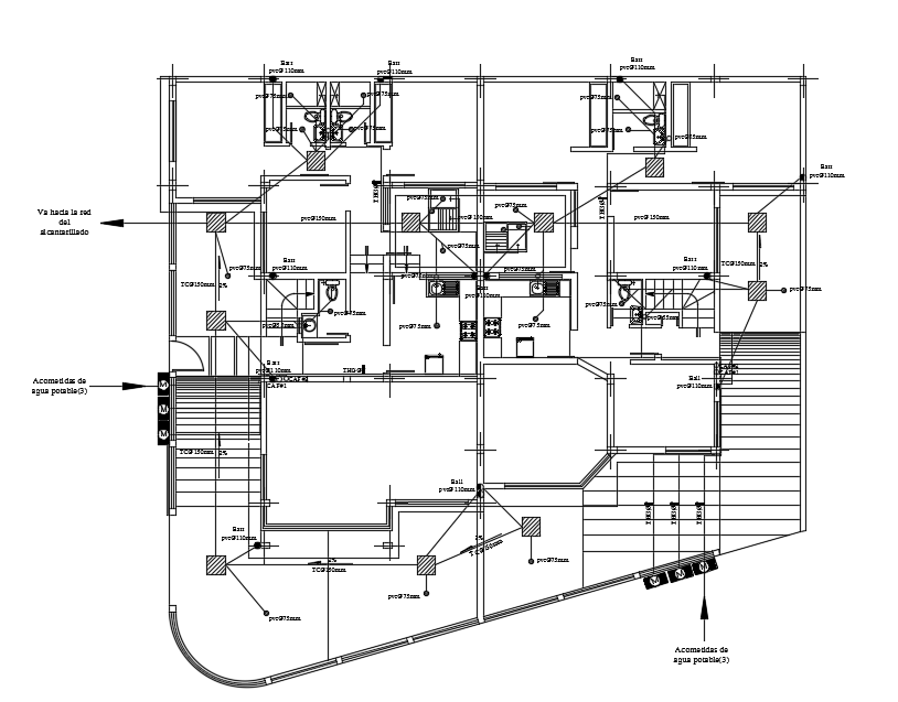
21x20m 3 story house plan ground floor sanitary layout cad drawing is given. Manhole connections are provided. For each man holes, PVC 75mm pipe is provided. Sanitary pipe lines are provided to the kitchen, attached bathroom, and common bathroom. From the kitchen line, 110mm pvc is provided.
Uploaded by:

