Office Building Layout plan

Office Building Layout plan
Profile

Uploaded by:

K.H.J

Jani

Description
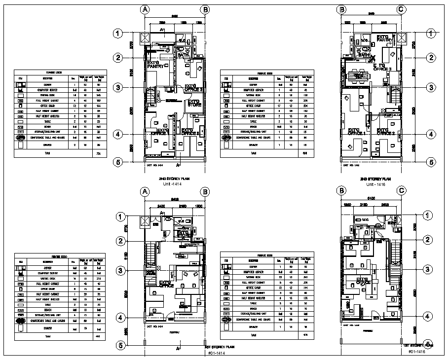
Office Building Layout plan dwg file. Find here layout plan of all floor level with furniture arrangement detail, structure plan, all office desk detailing of Office Building project.
Profile

Uploaded by:

K.H.J

Jani

find Latest

Related Files

WhatsApp Chat