Ventilation System in a building.
Description
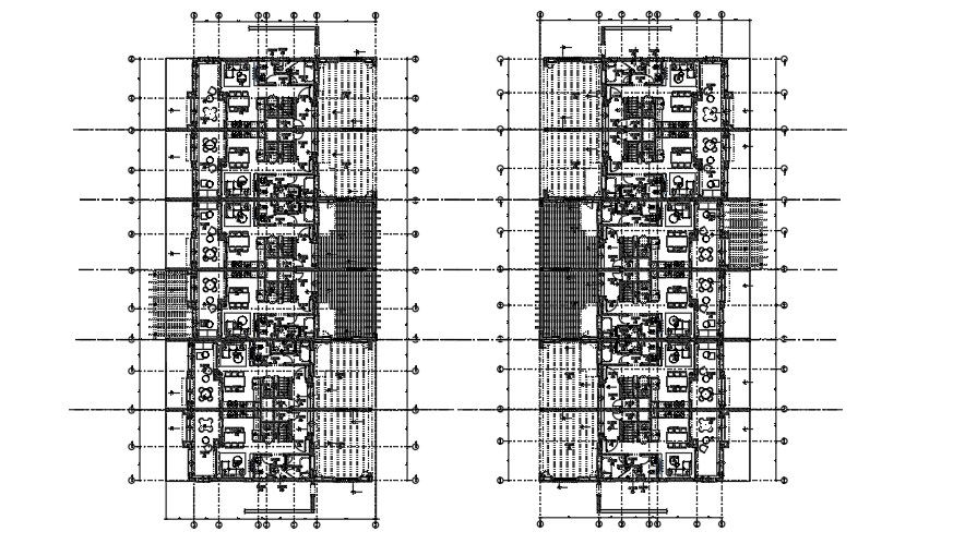
The Architectural Drawing shows Ventilation System in a building. Natural ventilation in buildings delivers fresh air to interiors, ensuring safe, healthy and comfortable living and working conditions for domestic and commercial properties. By replacing stale air with fresher air from outside, it's possible to regulate internal temperatures and humidity. Natural ventilation can provide building occupants with thermal comfort and a healthy indoor environment. Among all the design related parameters that affect ventilation performance, ventilation mode (i.e. single-sided and cross ventilation) is perhaps the main one. Natural ventilation is a method of supplying fresh air to a building or room by means of passive forces, typically by wind speed or differences in pressure internally and externally. Project teams typically choose natural ventilation because: Reduces carbon emissions. For more details and information Download the drawing file.

Uploaded by:
Eiz
Luna

