12x25m multifamily apartment plan 2d drawing
Description
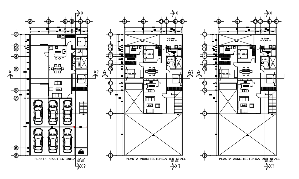
12x25m multifamily apartment plan 2d drawing is given in this file. This is three story apartment building plans. On this floor plan, a car parking, and 2bhk is available. This is a ground floor plan. On this plan, a car parking, kitchen, dining room, living room, master bedroom with the attached bathroom, kid’s bedroom, and common bathroom is available. On this first floor plan, 3 bedrooms are available. On this first floor, the living room, kitchen, dining room, master bedroom with the attached bathroom, children’s bedroom with the attached bathroom, guest bedroom, and common bathroom is available. On this second floor, 3 bedrooms are available. Two bedrooms are provided with the attached bathroom, and one bedroom is provided without bathroom. The living room, kitchen, master bedroom with the attached bathroom, kid’s bedroom with the attached bathroom, guest room, vestidor, dining room, open terrace, and common bathroom is available.
Uploaded by:
