10x13m house plan ground floor dimension detail drawing
Description
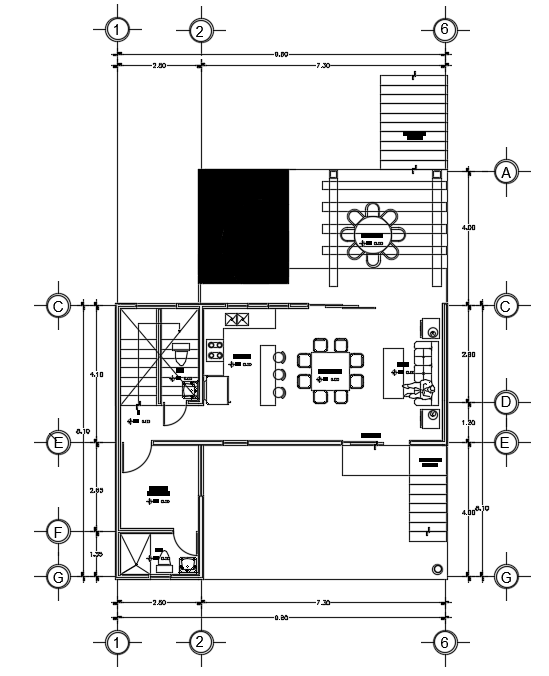
10x13m house plan ground floor dimension detail drawing is given in this model. The length and breadth of the house plans are 10m and 8m excluding open area and swimming pool. The dimension of each room is mentioned in this drawing. A garage, living room, dining room, maid room with the attached bathroom, kitchen, swimming pool, and common bathroom is available.
Uploaded by:

