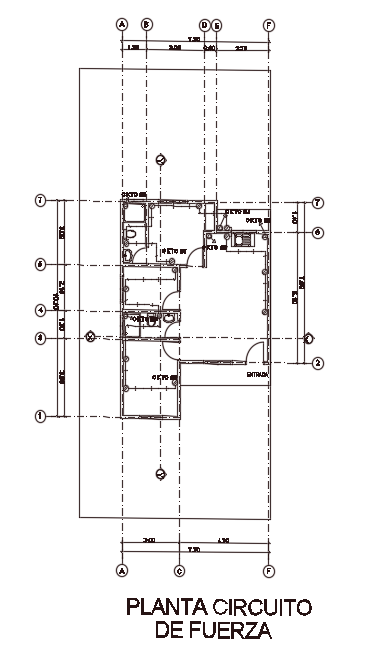
7x10m house plan power circuit plant 2d drawing is given in this model

7x10m house plan power circuit plant 2d drawing is given in this model
Profile

Uploaded by:

Meera

Description

7x10m house plan power circuit plant 2d drawing is given in this model. Each power circuit point is mentioned in this drawing.

 

Profile

Uploaded by:

Meera

find Latest

Related Files

WhatsApp Chat