6x8m ground and first floor duplex house plan cad drawing
Description
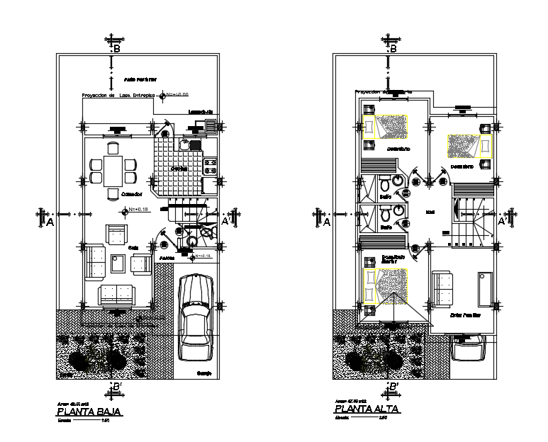
6x8m ground and first floor duplex house plan cad drawing is given in this file. This is a two story house building. The length and breadth of the site layouts are 7m and 14m respectively. On this ground floor plan, a car parking, garden, kitchen, dining room, living room, lavandria, and common bathroom is available. On this first floor plan, the family room, master bedroom, guest bedroom, kid’s bedroom, and common bathrooms are available.
Uploaded by:

