15x14m first floor slab construction layout cad drawing
Description
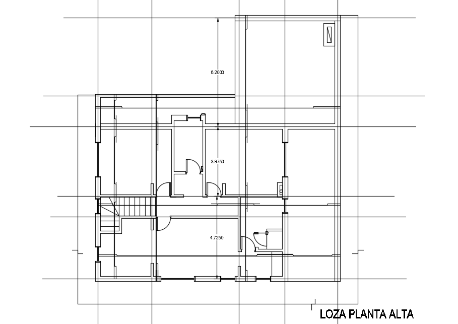
15x14m first floor slab construction layout cad drawing is given in this file. The one way and two way slab reinforcement drawing is presented.
Uploaded by:
15x14m first floor slab construction layout cad drawing is given in this file. The one way and two way slab reinforcement drawing is presented.
Uploaded by: