15x14m first floor home plan column location drawing
Description
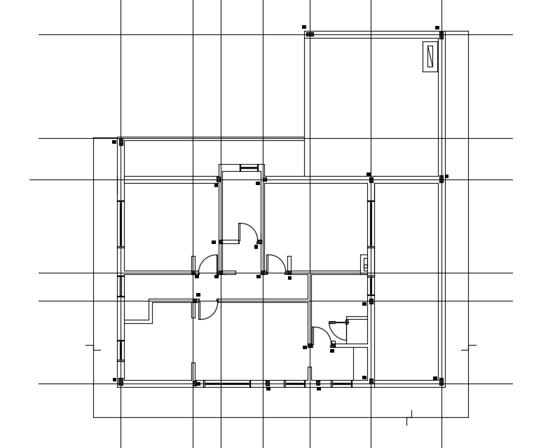
15x14m first floor home plan column location drawing is given in this file. This column location is given with the center line marking. Each column is mentioned my K.
Uploaded by:
15x14m first floor home plan column location drawing is given in this file. This column location is given with the center line marking. Each column is mentioned my K.
Uploaded by: