AHU INSTALLATION DETAILS OF CHILLER SYSTEM.
Description
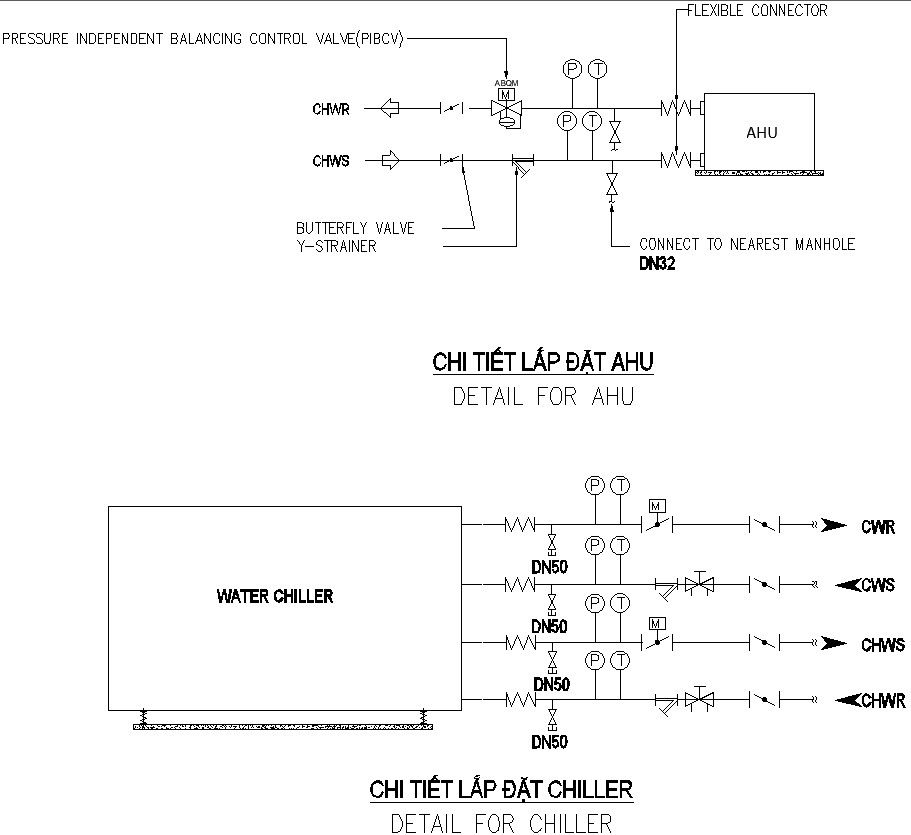
This Architectural Drawing is of AHU INSTALLATION DETAILS OF CHILLER SYSTEM. The AHU's are placed correctly on foundation with vibration isolator rubber pads at right location. The AHU's will be properly leveled and parallel to room walls/other installations. AHU's shall be inspected again for any damage during hoisting/shifting. AHU's typically do not have their own cooling system built in, instead they will be connected to a central plant water or air cooled chiller, occasionally they will use some sort of split a/c unit and you can also find these connected to district cooling networks. Chilled water funnels into the risers and then into smaller diameter pipes that then follow into the fan coil units – FCU's – and the air handling units – AHU's – which then provide the building with air conditioning. Air handling units, which usually have the acronym of A.H.U are found in medium to large commercial and industrial buildings. They are usually located in the basement, on the roof or on the floors of a building. For more details and information download the drawing file.
File Type:
DWG
File Size:
2.8 MB
Category::
Dwg Cad Blocks
Sub Category::
Autocad Plumbing Fixture Blocks
type:
Gold

Uploaded by:
Eiz
Luna
