Support for insulators design with detailing
Description
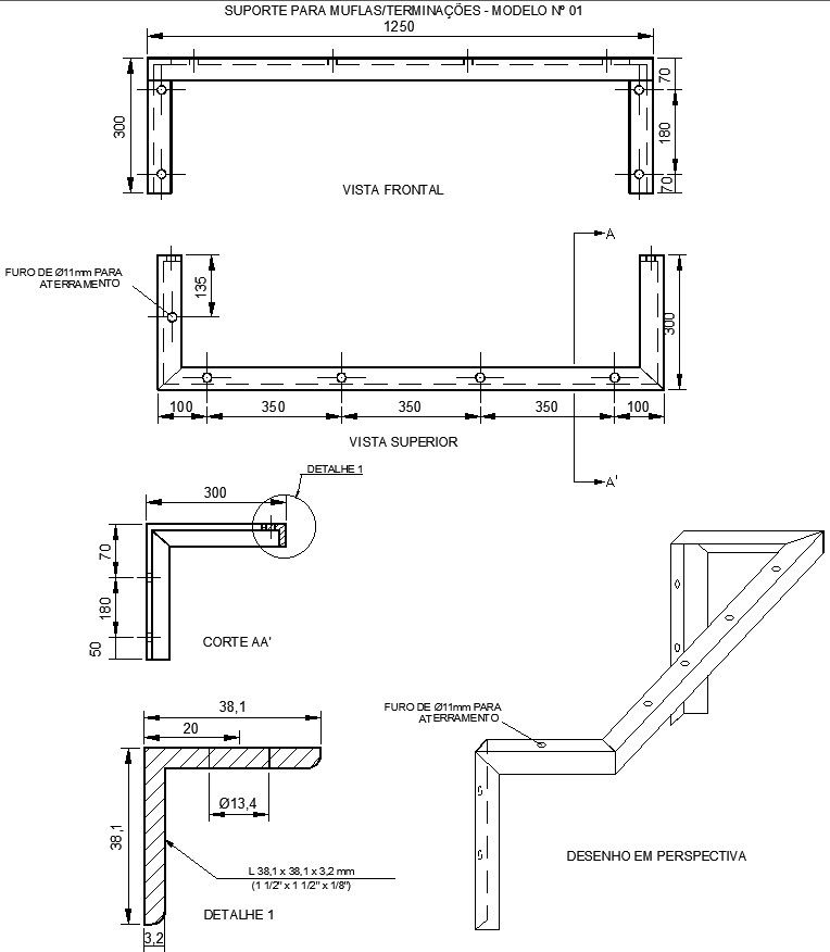
This architecture drawing is Support for insulators design with detailing. In this drawing there are including front view, top view, section view, perspective view etc. are given with details. In this drawing diameter of all holes are 11mm. Total length of the object is 1250mm, height is 300mm. For more details and information download the dwg file.
Uploaded by:
viddhi
chajjed

