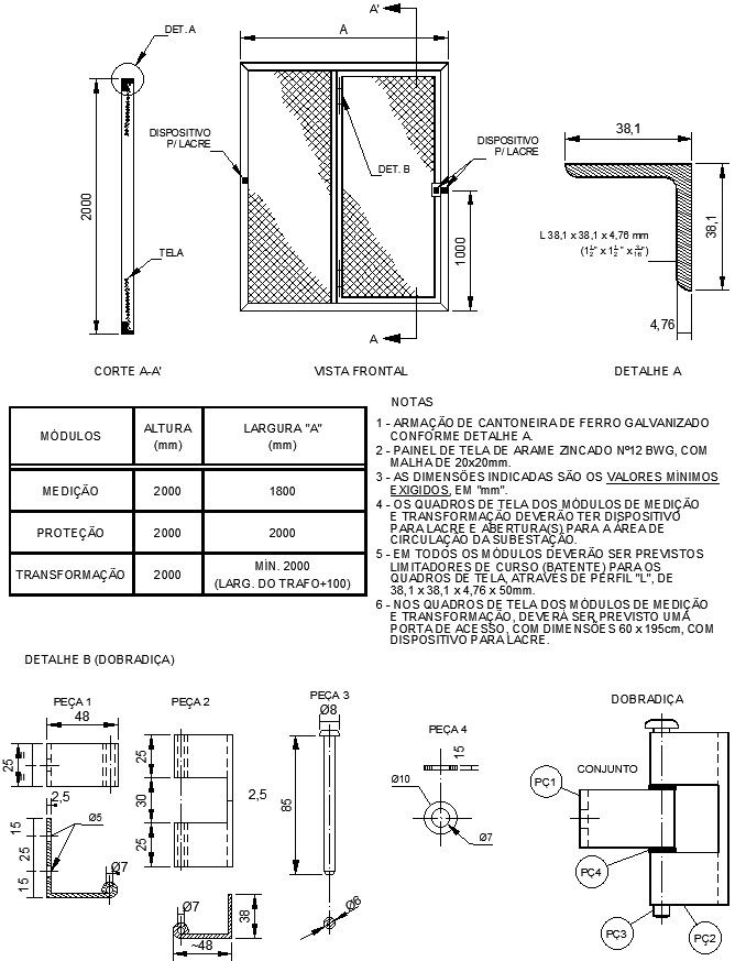
Drawing of window with section detailing
Description
This architectural drawing is Drawing of window with section detailing. In this drawing given front view of window elevation. The dimension of the window is 2000x2000. There were also given section AA' with detailing. Also given the table of dimensions. For more details and information download the DWG file.
Uploaded by:
viddhi
chajjed

