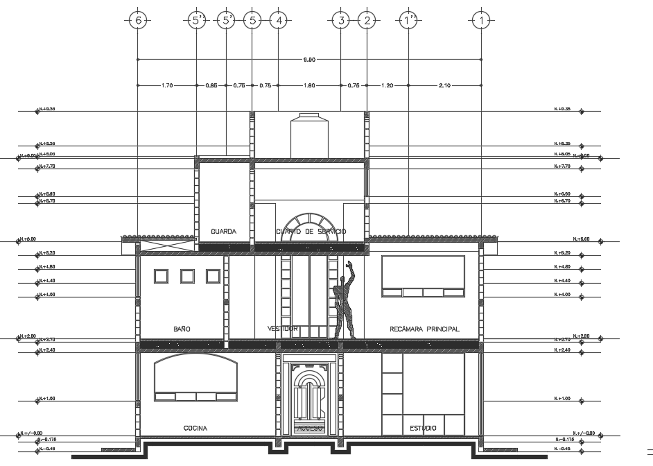
The back side cut section view of the 10x12m house building
Description
The back side cut section view of the 10x12m house building is given in this model. Here, two floor details are given. The kitchen, study room, and main door view is visible on this ground floor building. The master bedroom, bathroom, and vestidor is presented in this first floor building. On roof, cuarto de service, and water tank is visible.
Uploaded by:

