10x12m house plan column and foundation location AutoCAD model
Description
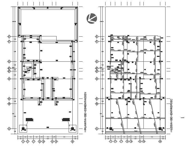
10x12m house plan column and foundation location AutoCAD model is given in this file. Here, the foundation and column locations are given to the ground floor. Column and beam layouts are given to the first floor. Slab reinforcement of one way and two way slab details are mentioned.
Uploaded by:

