AutoCAD 10x12m Second Floor House Plan with Furniture
Description
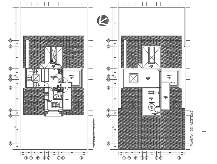
10x12m house plan second floor furniture’s detail drawing is provided in this file. Here, maid room with the attached bathroom, lavanderia, and open terrace is available.
Uploaded by:
10x12m house plan second floor furniture’s detail drawing is provided in this file. Here, maid room with the attached bathroom, lavanderia, and open terrace is available.
Uploaded by: