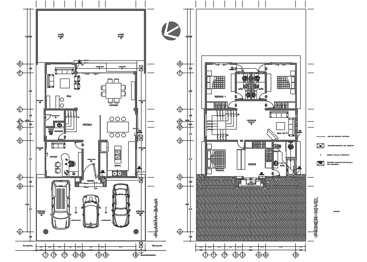
10x12m house plan ground and first floor sanitary detail drawing
Description
10x12m house plan ground and first floor sanitary detail drawing is given in this file. On this ground floor, the pipe lines are provided to the common bathroom, and kitchen. On this first floor, the inlet and outlet pipe lines are provided to the master bedroom’s attached bathroom, guest bedroom’s attached bathroom, and kid’s bedroom’s attached bathroom.
Uploaded by:

