10x12m house plan second floor and roof floor water line layout AutoCAD drawing
Description
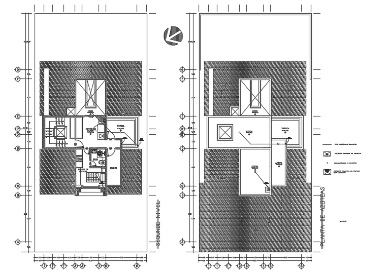
10x12m house plan second floor and roof floor water line layout AutoCAD drawing is given. In this second floor, the inlet and outlet lines are provided to the maid room, lavanderia, and patio. On this roof floor, the water line starting point is mentioned.
File Type:
DWG
File Size:
3.8 MB
Category::
Dwg Cad Blocks
Sub Category::
Autocad Plumbing Fixture Blocks
type:
Gold
Uploaded by:

