10x12m house plan ground and first floor electrical layout
Description
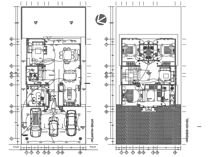
10x12m house plan ground and first floor electrical layout is given in this file. Here, fan point, switch point, wire direction, AC unit, spot light, tube light and chimney lines are provided.
Uploaded by:
