10x12m second floor house plan electrical layout CAD drawing
Description
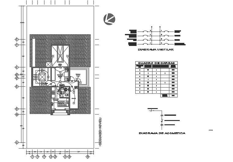
10x12m second floor house plan electrical layout CAD drawing is given in this model. Here, the electrical lines are provided to the patio, maid room, bathroom, staircase, and terrace area.
Uploaded by:
