Drawing of Tread Foundation Details
Description
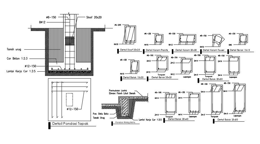
This architectural drawing is Drawing of Tread Foundation Details. In this drawing there were given the details of sloof, column, reinforcement details, details of different blocks etc. For more details, dimensions and information download the drawing file.
Uploaded by:
viddhi
chajjed

