Drawing of garden level plan
Description
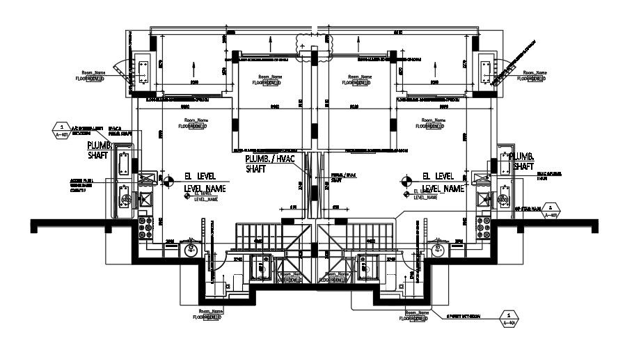
This architectural drawing is Drawing of garden level plan. In this drawing there were given scale is 1:50. There were plan given with their dimension details. In this drawing also included electric details. For more details and information download the drawing file.
Uploaded by:
viddhi
chajjed

