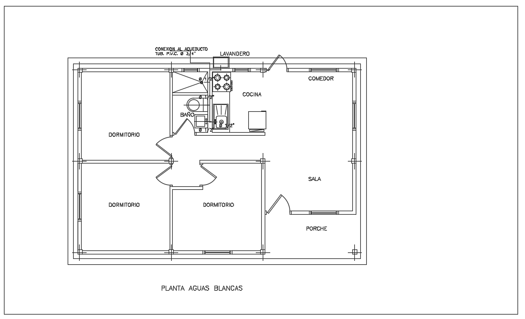
10x7m house plan bathroom and kitchen detail drawing is given in this file

10x7m house plan bathroom and kitchen detail drawing is given in this file
Profile

Uploaded by:

Meera

Description

10x7m house plan bathroom and kitchen detail drawing is given in this file.

 

Profile

Uploaded by:

Meera

find Latest

Related Files

WhatsApp Chat