Layout plan of power supply system
Description
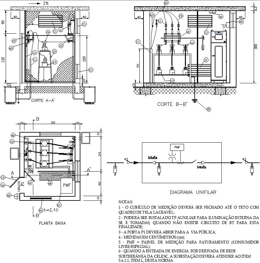
This architectural drawing is Layout plan of power supply system. This drawing included blueprint of plan, cross section AA', cross section BB', single diagram etc. The measuring cubical must be closed to the ceiling with a sealable screen frame, auxiliary TP can be installed for the internal lighting of the SE and outlets, when there is no LV circuit for this purpose, door P1 must open to the public road. For more details and information download the drawing file.
File Type:
DWG
File Size:
145 KB
Category::
Electrical
Sub Category::
Electrical Automation Systems
type:
Gold
Uploaded by:
viddhi
chajjed
