Cross section AA' of electric power distribution system
Description
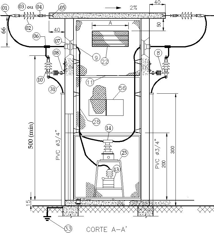
This architectural drawing is Cross section AA' of electric power distribution system. In this section height of the PVC pipe is 300 and diameter is 3/4". Auxiliary TP can be installed for the internal lighting of the SE and outlets, when there is no LV circuit for this purpose. For more details and information download the drawing file.
File Type:
DWG
File Size:
354 KB
Category::
Electrical
Sub Category::
Electrical Automation Systems
type:
Gold
Uploaded by:
viddhi
chajjed

