Cross section BB' of electric power distribution system
Description
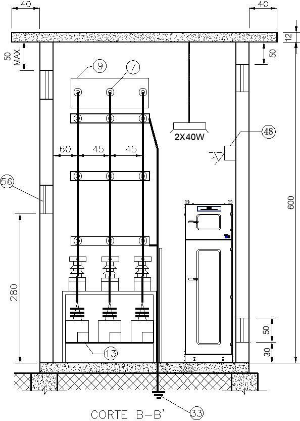
This architectural drawing is Cross section BB' of electric power distribution system. In this drawing there were height of the system is 600. The measuring cubicle must be closed up to the ceiling with a sealable screen frame. In this drawing measurements are in meter. For more details and information download the drawing file.
File Type:
DWG
File Size:
354 KB
Category::
Electrical
Sub Category::
Electrical Automation Systems
type:
Gold
Uploaded by:
viddhi
chajjed
