2D cross section BB' of power distribution system
Description
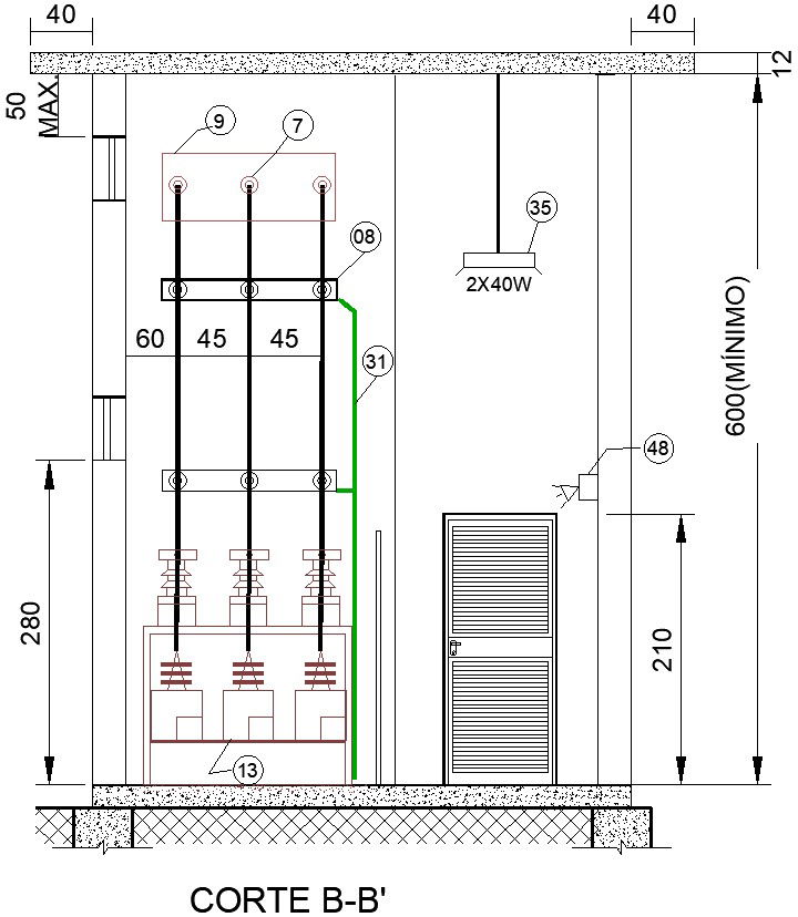
This architectural drawing is 2D cross section BB' of power distribution system. In this drawing the height of the system is 600. The measuring cubicle must be closed up to the ceiling with masonry division and sealable screen frame. The height of the door is 210. For more details and information download the drawing file.
File Type:
DWG
File Size:
332 KB
Category::
Electrical
Sub Category::
Electrical Automation Systems
type:
Gold
Uploaded by:
viddhi
chajjed

