AutoCAD 2D drawing of power distribution system
Description
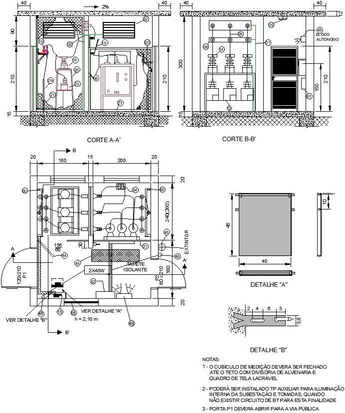
This architectural drawing is AutoCAD 2D drawing of power distribution system. In this drawing there were given cross section AA', cross section BB', main plan and details of A & B of the main plan. Measurement and protection substation above 300kVa, underground input and outlet. In this drawing all measurements are in meter. For details and information download the drawing file.
File Type:
DWG
File Size:
332 KB
Category::
Electrical
Sub Category::
Electrical Automation Systems
type:
Gold
Uploaded by:
viddhi
chajjed

